Аренда торговой площади

Ростовская область, Ростов-на-Дону, Буденновский

125 000 ₽/мес

869 ₽ за м²/мес.

144 м²
Площадь
1/5
Этаж

Поделиться

Добавить в избранное

НЕ ФЕЙК!
Аренда от собственника. Без комиссии!

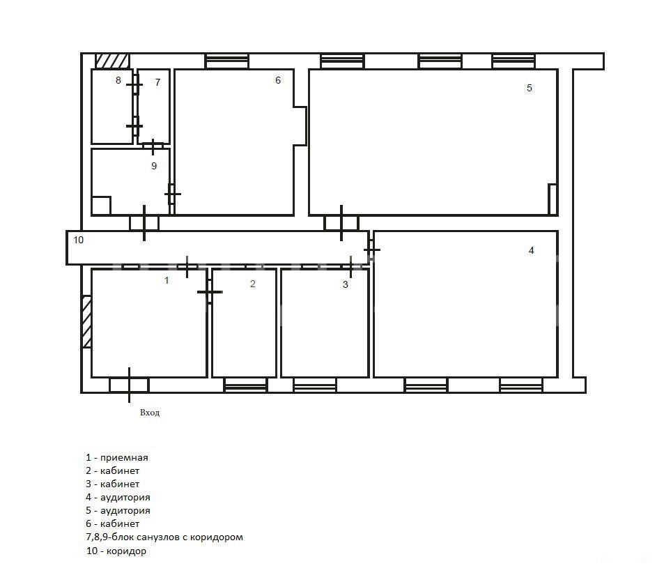
Предлагаем в аренду помещение в Центре города.
Характеристики и преимущества:
- 1 этаж, фасад, витрина, отдельный вход, место для рекламы,
- общая площадь 144 кв.м., в т.ч. 2 больших зала, 3 кабинета, приемная,
- современный ремонт,
- отличная транспортная доступность для клиентов - в 100м остановка на пр. Буденновский,
- рядом расположены парк, жилые комплексы бизнес-класса, бизнес-центры, что обеспечивает высокую плотность населения в окружении объекта,
-перед фасадом находится парковка.
Отлично подходит под магазин, клиентский офис, различные направления сферы услуг.

Контактное лицо: Елена Владимировна. Звоните, отвечу на все Ваши вопросы.Каталожный номер — B052694

Дата обновления: 13 марта 2026

Помещение Торгово-офисное Магазин